449 000 €
Maison neuve 6 pièces avec terrasse, garage et jardin
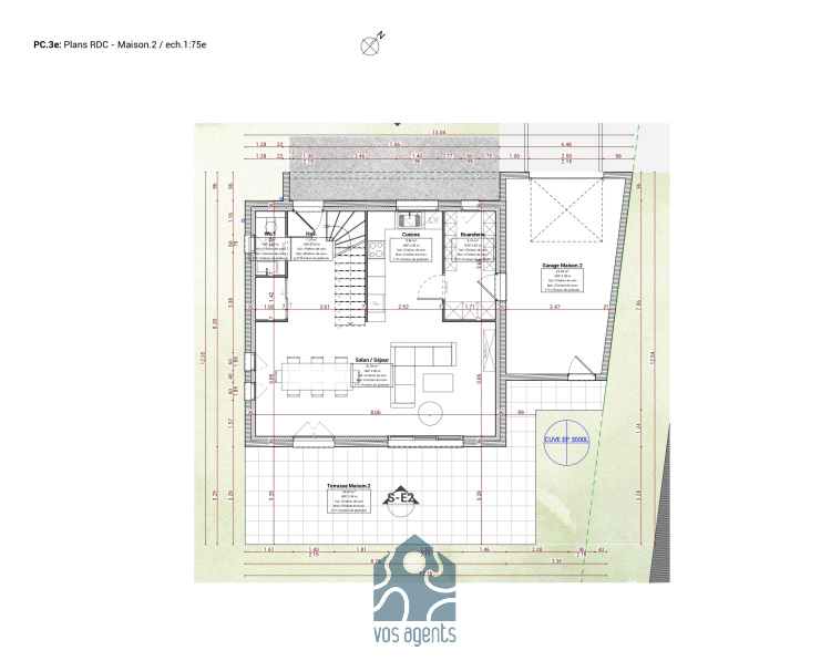
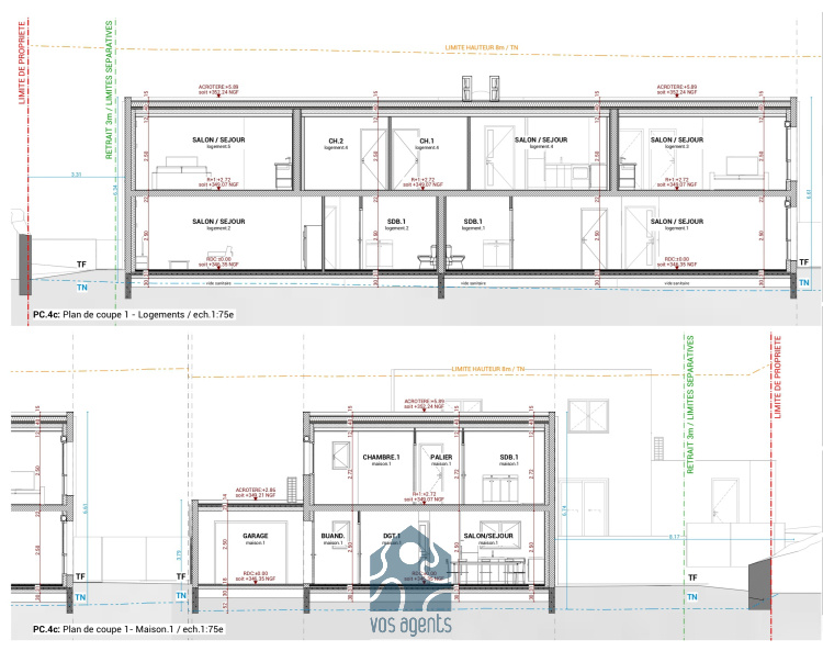
Maison 129m² 6 Pièces - Martres-De-Veyre
Les Martres-de-Veyre //
Vos Agents vous proposent... une maison neuve en cours d'achèvement, vendue entièrement finie ou avec quelques modifications possibles selon vos envies, idéalement située...
- 129m²
- 650m²
- 1
- 5
